Inmueble de viviendas en Alpedrete Madrid, 1997

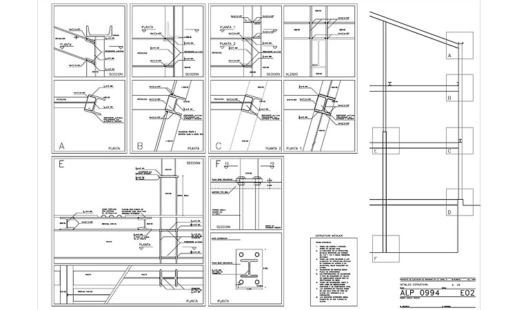
Estructura

La estructura es de acero con forjados de chapa perfilada minionda, con pórticos rígidos transversales a la fachada. Las vigas de borde en fachada estabilizan el conjunto.

La estructura tiene un gran protagonismo en la organización y plástica del conjunto, y queda vista en los aparcamientos y en las fachadas.

Los muros de contención se forman con fábricas de piedra como encofrados perdidos.