Colegio Rincón Añoreta Rincón de la Victoria, Málaga 2004.

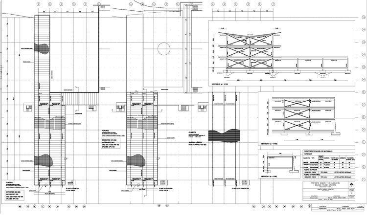
Estructura

El complejo de aulas y servicios se resuelve con un esqueleto reticular formado por pórticos paralelos de nudos rígidos, con luces de 7’20 m. entre soportes separados 6,60 m., con un forjado de placas alveolares apoyado sobre las vigas de cuelgue, que salvan las luces de 6,60 m. y los 2,40 de voladizo.
Los 120 cm. de ancho de la placa alveolar organizan la geometría de todo el conjunto.