Piscinas Municipales de Pinto Madrid, 1997

Construcción

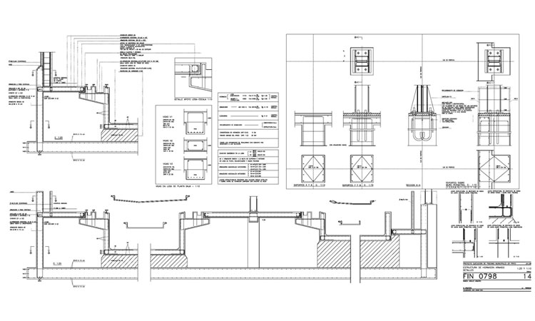
El basamento es una construcción de hormigón armado, formada por una losa de cimentación continua que se prolonga en los muros de contención, soporta las playas y aloja los vasos. Dado que el nivel freático está 1'80 m. bajo la rasante, este pedestal tiene además el cometido de equilibrar el empuje ascensional.

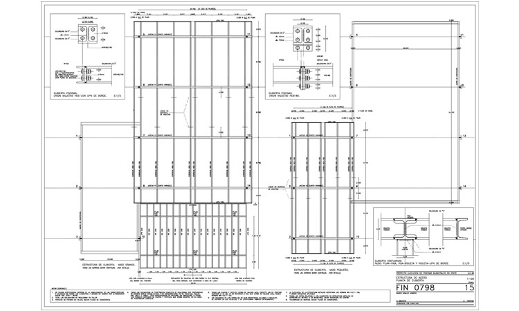
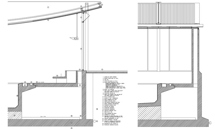
La cubierta, una compleja organización multicapa con la cámara ventilada para evaporar posibles condensaciones, y tiene la forma de un gran canalón. Los laterales de vidrio son un muro cortina montado por paneles, con frisos motorizados. Los muros opacos son de dos hojas de hormigón visto.