Piscinas Municipales de Pinto Madrid, 1997

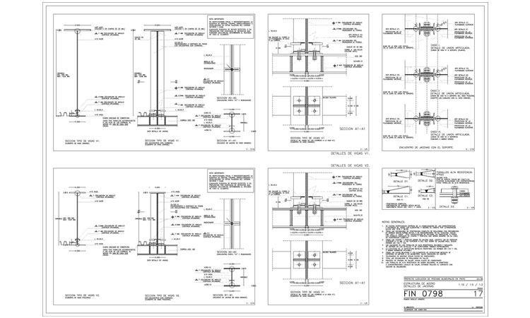
Estructura

La estructura de cubierta es de jácenas transversales metálicas de canto variable de las que se suspenden vigas longitudinales en H. Es un sencillo montaje porticado y atornillado, que se mantiene siempre al exterior, con el criterio de mantener todos los elementos metálicos exteriores al envoltorio y libres de la atmósfera interior.

El basamento y playas son de hormigón "in situ", con juntas de neopreno en el apoyo de las losas en los vasos.